Palmako
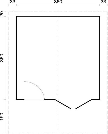
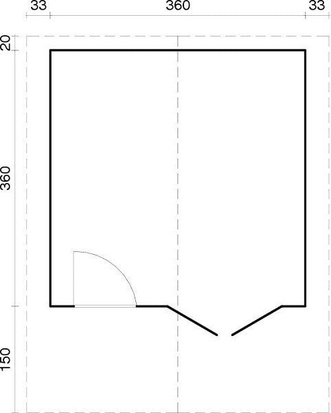
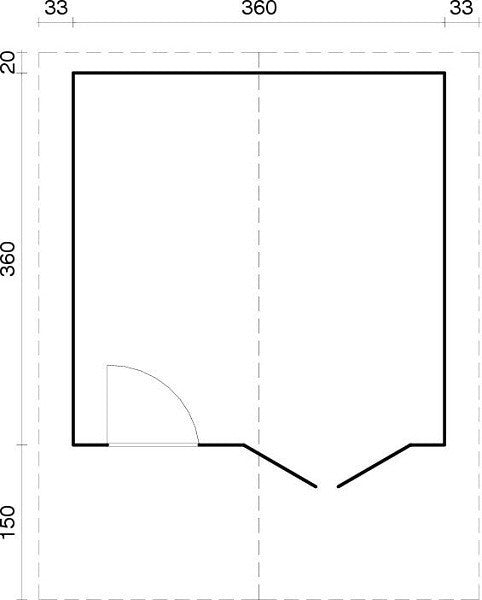
The Sally 44mm Log Cabin 3.8mx3.8m
The Sally 44mm Log Cabin 3.8mx3.8m
Couldn't load pickup availability
The Sally Garden House
The Sally Garden House is manufactured with Nordic Spruce wood and has the tongue and groove floor and roof boards. The window has double glass and rubber seals and silicone, the window opens with a tilt and turn mechanism and has a water gutter made of metal. The door has a cylinder lock and laminated door frame, the door sill is low and has a stainless steel cover. The hinges on the door are 3D adjustable in the X,Y and Z axis.
This building has wind braces in its construction which help protect against the elements. The roof comes with roof felt as standard but shingles are available for a small charge. Please see drop down bow below.
Features
- Pressure treated foundation joists
- Tongue and groove roof and floor boards
- Laminated door frame
- Low door sill with stainless steel covering
- 3D adjustable door hinges
- Double glass
- Cylinder lock
- Rubber seals and silicone
- Tilt and turn window
- Metal water gutter
- Wind braces
- Assembly kit
- Roof felt
Optional extras
- Roof shingles
Please note
This building will arrive unfinished, models pictured may have been painted for display purposes
* This manufacturer may charge extra for remote delivery areas such as the highlands of Scotland and offshore islands. Please contact us for a delivery price if you think this applies to you.

