Eurovudas
Rumus Log Cabin 5mx4m including Floor
Rumus Log Cabin 5mx4m including Floor
Couldn't load pickup availability
The Rumus Log Cabin 5 x 4 m
The Rumus log cabin is ideal for use as a large garden office, or for providing additional living space for your family. The cabin could easily be used as a children's playhouse or as a workshop. The log cabin features; three double windows and a double door. The building is manufactured from 34 mm double grooved interlocked logs which are shaped to have a flat face with soft round edges. This cabin has functional single glazed windows .
Please note: This cabin is supplied with roofing felt as standard. Please see the options below for various shingle designs and colours to enhance your cabin.
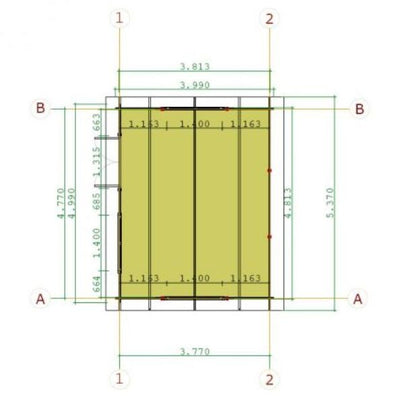
Dimensions:
- Size (in ft): 16 x 13
- Width : 5m
- Depth: 4m
- Window Size: 1380 x 910mm
- Door height: 1.9m
- Door width: 1.3m
- Roof area: 24 sq m
- Roof thickness: 19mm
- Felt Shingle tile Roof Covering, Green/Red/Grey/Black
When delivered, the building has to be handled off the lorry, so two able bodied people must be in to help with unloading.
Please note: Deliveries of these log cabins are on an articulated lorry which can be 40 foot long. Delivery is to kerb-side which means either to your front drive or front grass. Please advise us before placing your order if you foresee any access restrictions for this type of vehicle as there may be additional costs involved.
For installation costs please contact us for prices.

