Lugarde
Lugarde Yale 44mm Log Cabin 3m x 4m
Lugarde Yale 44mm Log Cabin 3m x 4m
In stock
Couldn't load pickup availability
Lugarde Yale Log Cabin 3m x 4m
A Lugarde log cabin with a simple design style and an added roof extension to make a useful canopy, This cabin has central double doors and a side window.
Manufactured from top quality 44mm Northern European pine logs from renewable resources. The wood is allowed to dry to a low moisture level which helps prevent warping.
This cabin is easy to assemble, the logs simply following a stack construction with interlocking corners.
Standard Features:
- Double door. (MG02H)
- Window (MG50)
- 44mm (1.8") wall thickness
- Double glazing
- 19mm Roof boards
- EPDM Rubber Roof.
Extra Options
- Roof Insulation - this consists of 4cm thick insulation plates.
- 4cm thick floor insulation-laid beneath the wooden floor.
- Various window and door designs
- 19mm Tongue and groove floor.
- Impregnated building
- 68mm Logs
- Transparent colour stain of the log cabin and floor
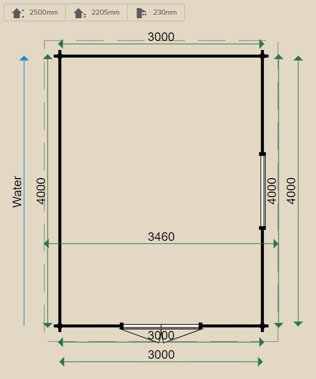
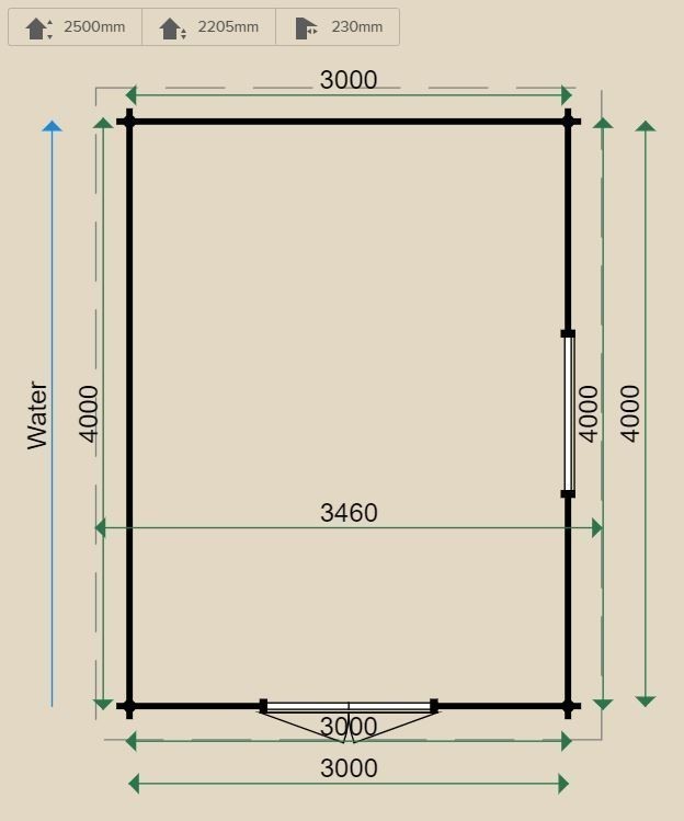
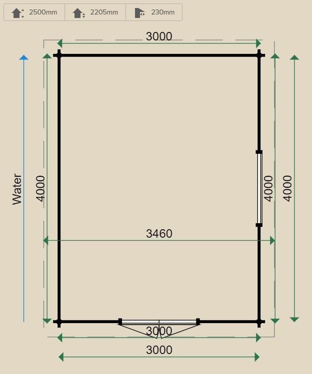
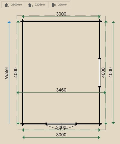
Dimensions:
Cabin 3m x 4m
Approximate Wall height: 2.2m
Approximate Maximum Roof height: 2.5m
Roof overhang: 23cm approx.
All buildings are untreated as standard. To provide optimum protection you must treat the wood as quickly as possible both internally and externally. Ideally first with an impregnating agent and then with a stain/paint. Lugarde have an extensive range of these.
*As the timber prices are still quite volatile the prices can change regularly for this product consequently the displayed price is what this item was last sold for and may not be the current price, please check with us before placing an order*
