Lugarde
Lugarde Venice Log Cabin and Veranda 6mx6m
Lugarde Venice Log Cabin and Veranda 6mx6m
In stock
Couldn't load pickup availability
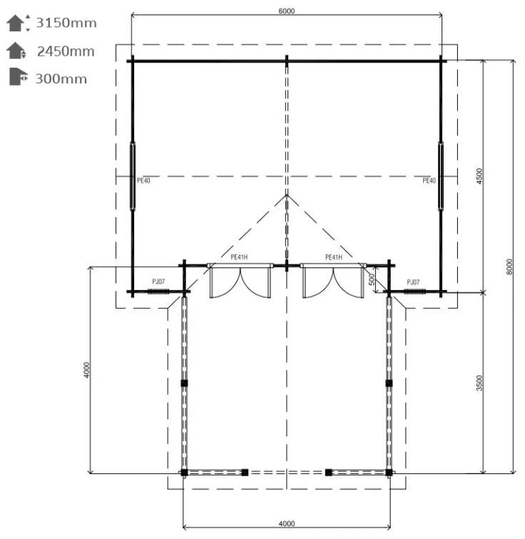
Lugarde's Venice Log Cabin and Veranda measures an overall 6.0m by 6.0m deep (19'6x19'6). The large open interior features Two double doors as well as two casement windows with decorative top pane detailing. Two bay sections also provide light through the elegant long fixed pane windows. All of these units benefit from double glazed and toughened glass panes. The Large balustrade entrance Veranda creates a perfect reception area ideal for storage, shelter or entertaining.
The Venice Lugarde Log Cabin would make an outstanding garden studio, recreation room or guest house. The roof and floor insulation upgrade could easily transform the space into a year round extension to your home. This impressive building is an example from Lugarde's standard range however every cabin is produced to order and can therefore be tailored to your own specific requirements.
Venice Log Cabin Standard Features:
- Two Double Glazed Double Doors PE41
- Two Double Glazed Casement Windows PE40
- Two Fixed Double Glazed Windows PJ07
- 44mm Thick wall Logs
- 19mm T&G Roof Boards
- Front 4.0x 3.0m Veranda Entrance
- Bitumen Shingled Roof
Lugarde's Optional Extras and Upgrades:
- 19mm T&G floor with skirting and pressure impregnated joists
- Shingle Colour; Black, Brown, Red, Blue or Green
- Brass or Chrome metal work
- Roof and Floor Insulation Kits
- Factory Treatment
- Transparent Colour Stain of the Log Cabin and Floor
Lugarde's Quality and Detail:
- Lugarde are a trusted manufacturer who hold 30 years experience producing and distributing Log Cabins in Europe and the UK. Their understanding of garden buildings has formed a refined product and outstanding service. Please see our support information page or download a brochure for more details but the following lists a few key points:
- Lugarde are dedicated to choosing high-quality raw materials. They select Premium Northern European Pine from ecologically managed forests as the foundation for all their Log Cabins and accessories. The timbers are kiln dried to ensure a moisture content of approximately 12 to 14% which reduces the natural movement, resulting in less cracks and warping.
- Windows and doors are fitted with solid hinges and locks. Doors are made from laminated wood strengthening the timbers against warping and are also fitted with aluminium threshold cover. On Double Glazed windows and doors full rubber seals exclude draughts whilst the windows come with adjustable hinges.
- Delivery takes place on Lugarde's own fleet of Artic lorries. Approximate delivery weeks are given shortly after ordering with a delivery day and time (am or pm) is confirmed by phone and email the week before. Lugarde's experienced drivers off-load the palletised buildings and will deliver roadside at your property.
- 5 Year warranty on manufacturing and construction faults.
Venice Cabin Dimensions:
- Width 6.0m (19'6) Depth 6.0m (19'6)
- Internal Space 16.7 sq.mtrs (55 sq.ft)
- Covered Veranda Area 12 sq.mtrs (39 sq.ft)
- Eaves Height 2.5m (8'2)
- Ridge Height 3.25m (10'6)
- Roof Overhang all round 30cm (11.8 inches)
- Door Opening 1.21 x 1.93m (3'9 x 6'3)
- Window Opening 1.21 x 1.40m (3'9 x 4'5)
Of course as Lugarde's cabins are made to order and can be fully customized to suit your specific requirements. Other options such as; Internal Walls, Mezzanine floors and Attic spaces, Wooden Step Ladders for mezzanine access, Canopies, Verandas and Decking can all be added to personalize your Lugarde log cabin.
Please Note: These buildings are supplied untreated and need to be treated inside and out as soon as they are installed.
FREE Mainland UK Delivery
*As the timber prices are still quite volatile the prices can change regularly for this product consequently the displayed price is what this item was last sold for and may not be the current price, please check with us before placing an order*

