Lugarde
Lugarde Select - Cambridge Flat Roof Log Cabin 300x400cm with 400cm Canopy
Lugarde Select - Cambridge Flat Roof Log Cabin 300x400cm with 400cm Canopy
Regular price
£3,408.00 GBP
Regular price
Sale price
£3,408.00 GBP
Taxes included.
Shipping calculated at checkout.
In stock
Quantity
Estimated Delivery: 20 Working Days
Couldn't load pickup availability
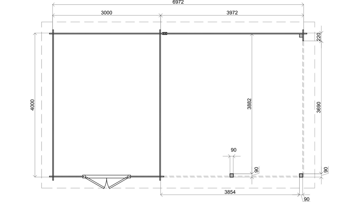
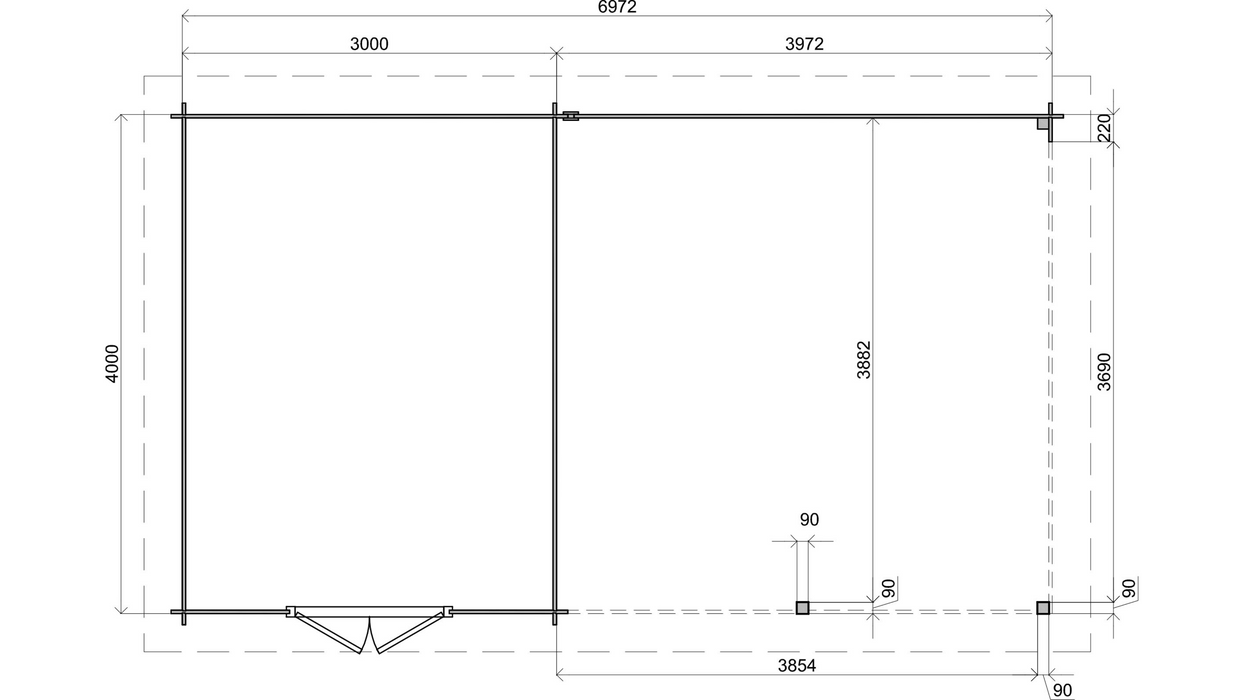
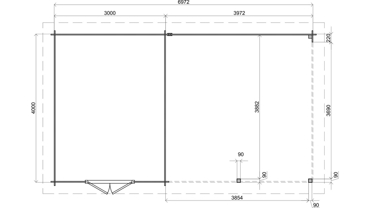
Lugarde Select Log Cabin 300x400cm with 400cm Canopy
28mm Log Thickness
1st Class Kiln-Dried Spruce
18mm T&G Roof boards
Double Door with 45mm thick laminated wood and double glazing
All hardware included
**No roof covering unless selected above

Questions & Answers loading...
