Lugarde
Lugarde Ruben Log Cabin 4.0m x 5.0m - including Floor
Lugarde Ruben Log Cabin 4.0m x 5.0m - including Floor
In stock
Couldn't load pickup availability
The Lugarde Ruben Log Cabin is a very versatile cabin, it comes as standard in a 44mm log thickness with double glazing as standard, with all the Lugarde range you have the option of purchasing a 19mm tongue and groove floor, to complete the look of this cabin. The Ruben can also be made in a 68mm log thickness and you can also have insulation in the roof and the floor areas. Please contact us for prices.
The following features are as standard:
- 1 Double casement tilt and turn window.(PE48)
- 1 Single casement tilt and turn window.(PE47) (opening inwards)
- Double door (PE45)
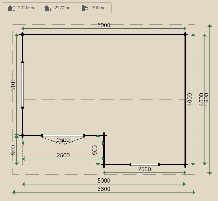
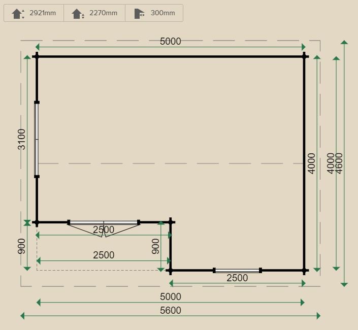
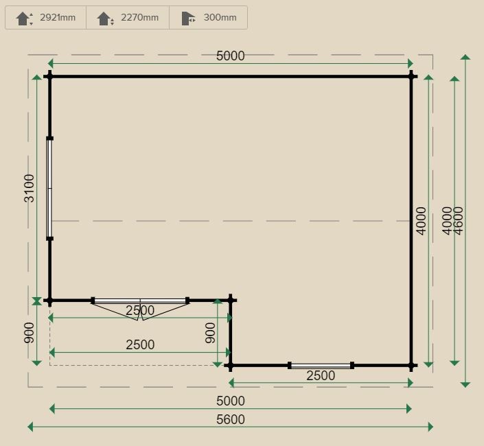
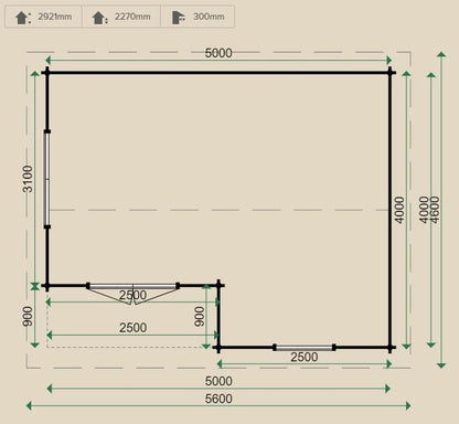
- Integral canopy (1.0 x 2.5m)
- 44mm wall thickness
- Roof shingles available in five colours
- Floor Included
- Double Glazing
Optional Extras
- 68mm log thickness
- Floor insulation
- Roof insulation
- Brass or Chrome effect door and window furniture
- Transparent colour stain of the log cabin and floor
Dimensions:
- 4.0m x 5.0m (13'1" x 16'4").
- Approximate Wall height: 2.30m (7'5")
- Approximate Maximum Roof height: 3.0m (9'8")
- Roof overhang: 30cm approx.
Please Note: Our Lugarde buildings are supplied untreated. Please see the options below for our factory wood stain.
FREE Mainland UK Delivery
*As the timber prices are still quite volatile the prices can change regularly for this product consequently the displayed price is what this item was last sold for and may not be the current price, please check with us before placing an order*

