Lugarde
Lugarde Prima Tom Log Cabin 4.2mx5.4m
Lugarde Prima Tom Log Cabin 4.2mx5.4m
In stock
Couldn't load pickup availability
Lugarde Prima Tom Log Cabin 4.2m x 5.4m
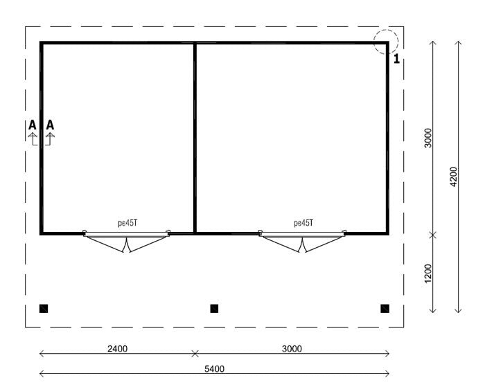
A flat roof Lugarde log cabin, the Prima Tom features two sets of double doors, glazed to allow plenty of natural light inside. The doors also benefit from double glazing. With an internal wall dividing the Tom into two rooms, this log cabin is extremely versatile. One room could be used for storage of garden tools whilst the other transformed into a family games room; the possibilities are endless!
A canopy to the front offers a welcome shaded area for outdoor seating, a great place to sit and admire your surroundings.
The flat roof is constructed in two layers, where the top layer is designed to slope backwards to form an integral gutter. This makes it very simple to set up a drainage system. The roof is manufactured using a rubber mat edges with aluminium strips to create a watertight finish. Designed using the unique 'Prima 3=1 system', the milled wall section fit into corner uprights eliminating the need for nails or screws. This creates an extremely stable construction that is easy to assemble.
Manufactured from top quality Northern European pine from renewable resources. The wood is allowed to dry to a low moisture level which helps prevent warping.
Please note: This log cabin is pictured with one board higher, this is not a standard feature.
Standard features:
- Two double doors (PE45)
- Double glazing
- Internal wall
- Front canopy
- 28mm wall thickness
- 19mm roof boards
- Pressure impregnated foundation beams
- EPDM Roof Covering
- Double Glazing
Extra Options:
- Various door designs
- Transparent colour stain of the log cabin and floor
- Roof and Floor Insulation
- Bespoke sizes available
- 44m Log Thickness
- Internal 19mm floor
Please contact us to discuss your requirements.
Dimensions:
Wall Height: 217cm
Roof Height: 245cm
Roof Overhang: 18cm
Canopy: 120 x 540cm
Posts: 12cm x 12cm
Please Note: These buildings are supplied untreated and need to be treated inside and out as soon as they are installed.
FREE Mainland UK Delivery
*As the timber prices are still quite volatile the prices can change regularly for this product consequently the displayed price is what this item was last sold for and may not be the current price, please check with us before placing an order*
