Lugarde
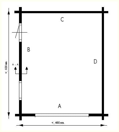
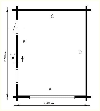
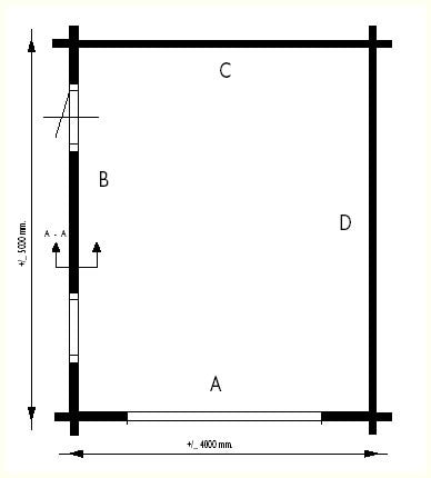
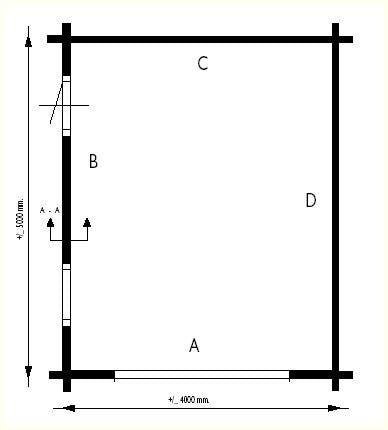
Lugarde Kentucky Garage 4.0m x 5.0m
Lugarde Kentucky Garage 4.0m x 5.0m
In stock
Couldn't load pickup availability
Lugarde Kentucky Garage 4.0m x 5.0m
An attractive Log Cabin Garage from Lugarde. This garage has an up and over 7'5" wide red cedar garage door and comes complete with a single access door and single opening windows.
The following features are as standard;
- 1 Top-Hung windows. (PX37)
- Single door. (PX39)
- Up and Over garage doors (GD01)
- 44mm wall thickness
- Roof shingles available in five colours
We are able to have this building fully installed or insulated, for prices please contact us.
Dimensions:
- 4.0m x 5.0m (13'1" x 16'4").
- Approximate Wall height: 2.30m (7'5")
- Approximate Maximum Roof height: 3.10m (10'2")
- Roof overhang: 30cm approx.
Please Note: Our Lugarde buildings are supplied untreated. Please see the options below for our factory wood stain.
FREE Mainland UK Delivery
*As the timber prices are still quite volatile the prices can change regularly for this product consequently the displayed price is what this item was last sold for and may not be the current price, please check with us before placing an order*

