Lugarde
Lugarde Colorado Garage 3mx5m
Lugarde Colorado Garage 3mx5m
In stock
Couldn't load pickup availability
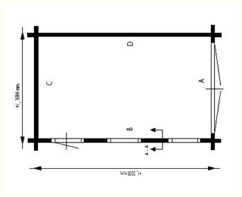
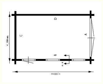
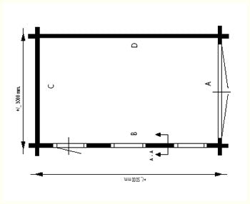
Lugarde Colorado Garage 5.0m x 3.0m
An attractive Log Cabin Garage from Lugarde. This garage has double 7'5" wide garage doors and comes complete with a single access door and two opening windows.
The following features are as standard;
- 2 Top-Hung windows. (PX37)
- Single door. (PX39)
- Double closed garage doors (GD02)
- 44mm wall thickness
- Roof shingles available in five colours
- Double Glazing
We are able to have this building fully installed or insulated, for prices please contact us.
Options:
- Roof shingle colour
- Installation
- Transparent colour stain of the garage and floor
- Pressure Treatment (Please call for more details)
Dimensions:
- 5.0m x 3.0m (16'4" x 9'8").
- Wall height: 225cm
- Roof height: 290cm
- Roof overhang: 30cm
Please Note: Our Lugarde buildings are supplied untreated. Please see the options below for our factory wood stain.
FREE Mainland UK Delivery
*As the timber prices are still quite volatile the prices can change regularly for this product consequently the displayed price is what this item was last sold for and may not be the current price, please check with us before placing an order*

