Lugarde
Lugarde Anne 44mm Log Cabin 4m x 5.5m
Lugarde Anne 44mm Log Cabin 4m x 5.5m
Couldn't load pickup availability
Lugarde AnneLog Cabin 4m x 5.5m
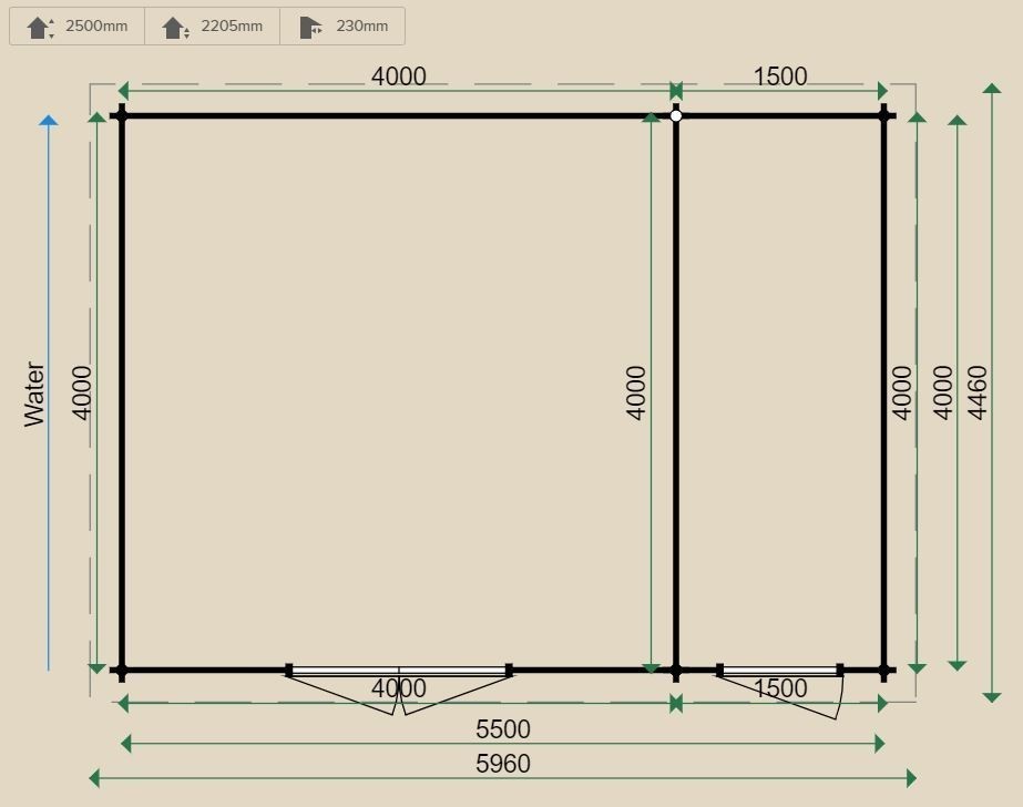
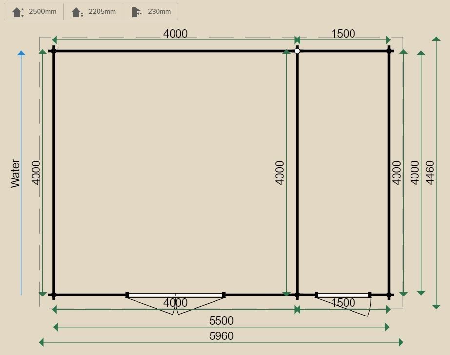
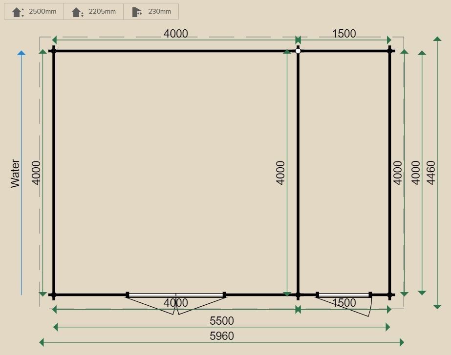
A Lugarde log cabin with a Modern style design, this cabin has double doors on the larger section and a single door on the smaller storage section. You can change the size of this design just by giving us a call
Manufactured from top quality 44mm Northern European pine logs from renewable resources. The wood is allowed to dry to a low moisture level which helps prevent warping.
This cabin is easy to assemble, the logs simply following a stack construction with interlocking corners.
Standard Features:
- Double door. (PE50H)
- Single Door (PX38H)
- 44mm (1.8") wall thickness
- Double glazing
- 19mm Roof boards
- EPDM Rubber Roof.
Extra Options
- Roof Insulation - this consists of 4cm thick insulation plates.
- 4cm thick floor insulation-laid beneath the wooden floor.
- Various window and door designs
- 19mm Tongue and groove floor.
- Impregnated building
- 68mm Logs
- Transparent colour stain of the log cabin and floor
Dimensions:
Cabin 4m x 4m, Side Shed 1.5m x 4m
Approximate Wall height: 2.2m
Approximate Maximum Roof height: 2.5m
Roof overhang: 23cm approx.
All buildings are untreated as standard. To provide optimum protection you must treat the wood as quickly as possible both internally and externally. Ideally first with an impregnating agent and then with a stain/paint. Lugarde have an extensive range of these.
*As the timber prices are still quite volatile the prices can change regularly for this product consequently the displayed price is what this item was last sold for and may not be the current price, please check with us before placing an order*
