Lugarde
Aberdeen Flat Roof Log Cabin 3.0x4.5m (Inc Canopy)
Aberdeen Flat Roof Log Cabin 3.0x4.5m (Inc Canopy)
In stock
Couldn't load pickup availability
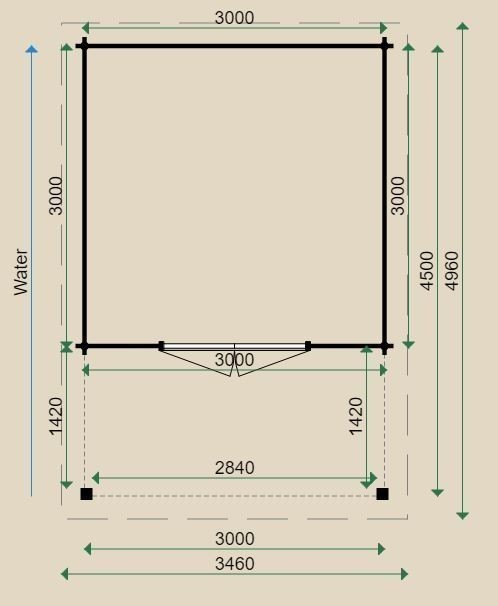
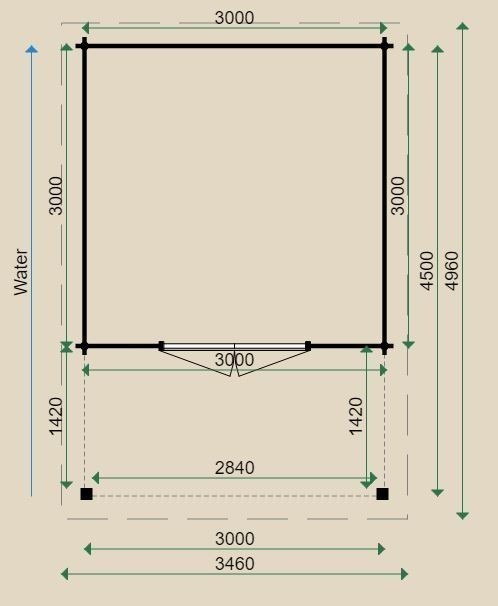
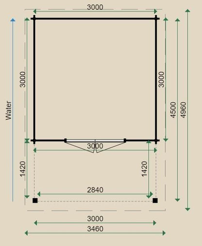
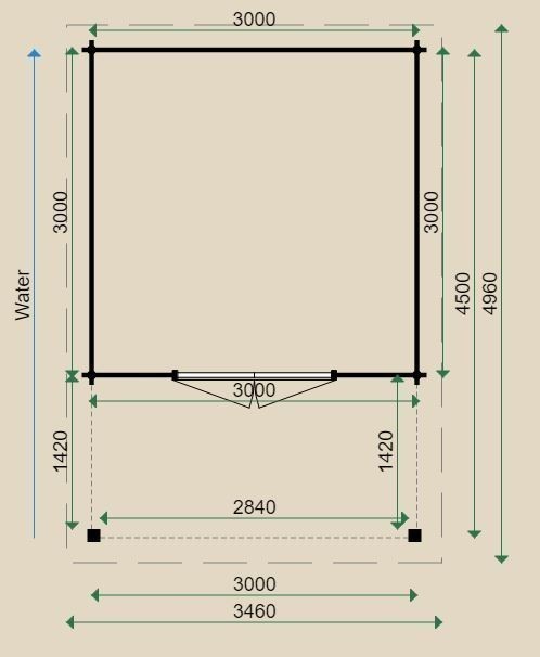
The Aberdeen Flat Roof Log Cabin from Lugarde measures 3.0m by 3.0m (9'8x9'8) and comes with a 1.5m (4'9) front canopy which is supported on substantial 12x12cm posts. This simple flat roof building is ideal for a corner or boundary location because it is only 2.5m in height.
The Aberdeen comes in 44mm logs as standard and featured a double glazed double door. Double glazing and Insulation upgrades are available including 68mm thick solid walls and floor and roof insulation. This modern building is an example from Lugardes standard range however every cabin is produced to order and can therefore be tailored to your own specific requirements.
Flat Roof Log Cabin Features:
One Glazed Double Door PE50
Front 1.5m Canopy with Two Supporting Posts
44mm Thick wall Logs
19mm T&G Roof Boards
EPDM Rubber Roof Covering
Lugardes Optional Extras and Upgrades:
A choice of 44mm or 68mm Thick wall logs
Brass or Chrome metal work
Roof and Floor Insulation Kits
Factory Treatment
Of course as Lugardes cabins are made to order and can be fully customized to suit your specific requirements. Other options such as; Internal Walls, Mezzanine floors and Attic spaces, Wooden Step Ladders for mezzanine access, Canopies, Verandas and Decking can all be added to personalize your Lugarde log cabin
Please Note: These buildings are supplied untreated and need to be treated inside and out as soon as they are installed.
FREE Mainland UK Delivery
*As the timber prices are still quite volatile the prices can change regularly for this product consequently the displayed price is what this item was last sold for and may not be the current price, please check with us before placing an order*
